


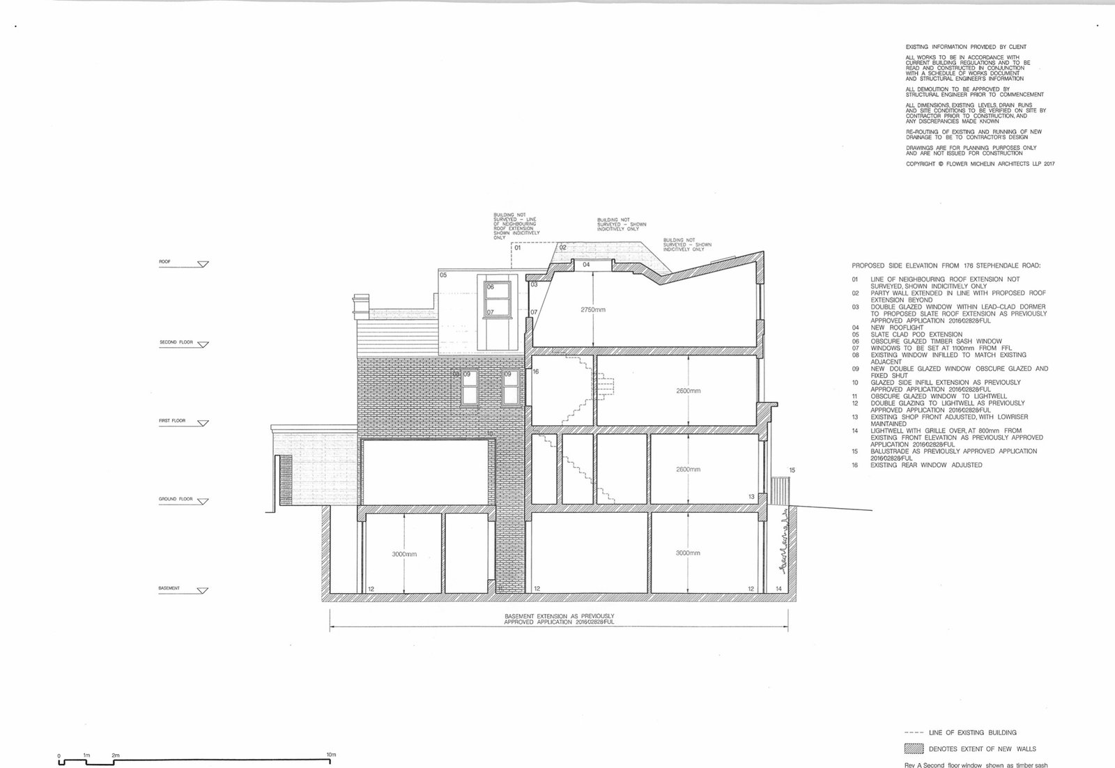
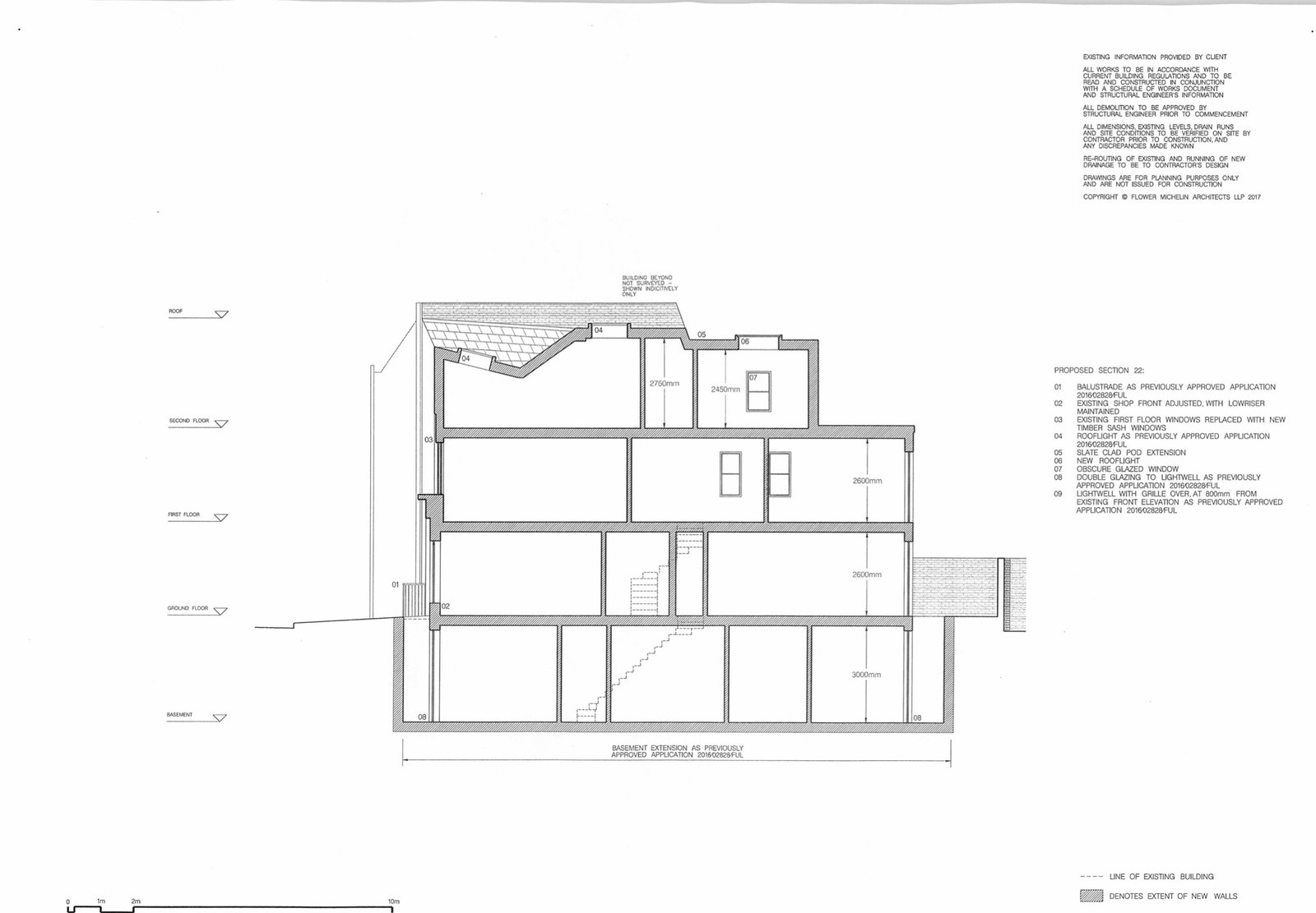
SAP Stephendale Road
SAP calculations were carried out on this terraced domestic residence.
Domestic SAP, Standard Assessment Procedure design and as built planning documents. The SAP, Standard Assessment Procedure, is the government’s approved methodology for rating the energy of dwellings. It uses BREDEM to predict heating and hot water consumption and costs. SAP can be used to demonstrate that the total emissions from the new or extended building is no greater than for a notional dwelling of the same size and shape, designed to the Part L standards.